groundwork institute
home projects bulletin links Who Are We contact



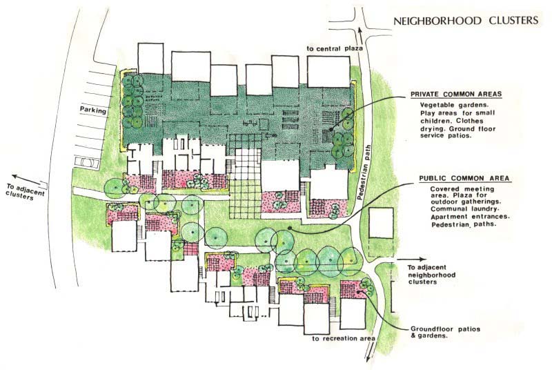
LAS ARBOLEDAS, A NEW TOWN IN HAVANA, CUBA

Slide 35



previous
contents
next





· home · projects · bulletin board · links · who are we · contact ·

webdesign by Ari Goldstein