
toca al imagen para un foto mas grande.
|
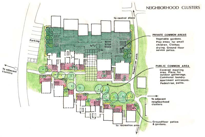
Al aprovechar estas opciones para los desplazamientos horizontales y verticales, pudimos crear complejos comunitarios en los cuales la parte delantera de los edificios forma un
área publica común con pasos peatonales que conducen a las entradas de los apartamentos y con una plaza para reuniones de vecinos y un
área de asambleas bajo techo. Los patios de las plantas baja y los jardines constituyen un adorno de
áreas verdes a este espacio común.
Detrás de los edificios está el área común para los habitantes de los mismos. Esta
área contiene jardines comunales e individuales, áreas protegidas de juego para los
niños pequeños cerca de la lavandera comunal, y área para tender la ropa. La lavandería de la comunidad es parte del espacio cubierto de reuniones.
Una vía peatonal llega a la plaza central, a la zona comercial, a las escuelas, al cine, etc. a una distancia promedio de 200 metros. Hacia la parte sur, estas
vías llegan a una presa y a un área de recreación. El parqueo está cercano (distancia promedio 30 metros,
máxima 80 metros), en las calles internas poco transitadas.
|