|
古巴新城—拉斯·阿尔鲍勒达斯
|
 
|
|

33.阿拉马:大革命后始于
20世纪70年代的新开发项目。 |
在了解了总的方案后,让我们来看一看问题的另一方面,单体楼。
我们的设计是通过对比古巴目前通行的做法开始的。 |
|

34.12层楼的住宅区 |
大革命后,由于与美国的贸易中断,多数新建筑技术是从苏联引进的。但这些技术常常不适合古巴的气候和文化。朝南的玻璃窗不能遮挡阳光,反而吸收太阳能,形成绝好的温室效应。这对寒冷的北方气候是适宜的,对于地处热带的古巴却适得其反。 |
|

35.Gran Panel VI优化施工体系
|
古巴有高度发达的建筑业。以水泥为主,拥有大量的全国范围内反复使用的设计标准 |
|
|

36. GP VI 标准方案
|
我们的做法并非全部抛开现有的体系,而是对它们加以研究以发现有价值的地方,并保留它;对那些欠佳的地方,予以纠正。对住宿群来讲,我们分析了各种标准体系,选择一个我们认为最具代表性优势的体系。这就是:GP-VI——预制水泥板体系(见左图)
|
|
保留最好的
本设计有几处优越的特征,我们希望将其用于住宅建设。这些我们打算予以保留的特征有:
- 窄式楼房,单户纵深。这算是最重要的特征,可提优良的自然光线、前后通风(用于自然降温)和更多的视野、房间的飘窗以及改善隔音和视觉效果的优点。
- 单体楼入口楼梯间/无大厅。每套公寓的入口均通过单独的楼梯间,而非整个楼层共用的走廊。这样的入口比通常的公寓楼入口有几的好处。入口处位于公寓的中央向内的位置,方便内部通行。这种单独的楼梯间供相对少量的公寓使用(四层的8户人家),提供了一个更亲切而个性化的进入环境。走廊不从公寓门前经过,这一设计加强了住户的私密性。
- 阳台。每户公寓都有自己的阳台,拥有部分自己的户外私人空间,这一点在热带地区特受欢迎。
- 木质百叶窗。这一特点在许多现有楼房中很常见的,但应予以保留。玻璃窗通常放进了不需要的太阳光,而固定窗户不能实现可控通风。木质百叶窗可提供隔离性能和良好的太阳光防护,并实现可调节通风。
- 经久耐用的施工质量
问题与改进建议
这些还存在许多问题,我们正设法逐一进行解决。我们认为重要的是:这些改进措施应基于已经做过的努力基础上,利用目前已取得的成就并保留现存体系的优势特点。也许在过去25年里建立的新体系的其中一个弱点是:他们没有充分地结合先前传统建筑的最佳特征。
建议的改善措施总结如下:

37.现在楼房的后部 |
充满活力的户外空间。现有建筑的最严重的问题之一是缺乏与户外空间的整合,特别是楼房的后部(见左图)。楼房后部完全平坦,几乎没有视觉联系,也没有实际入口通向楼房后面的空间。结果这一户外空间未被利用,也无法看见而成为一处重要的资源浪费。 |
|

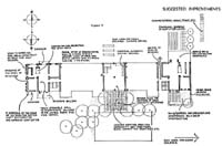
38.建议的改进措施 |
为改善这一状况,我们提出了几项改善措施:
o
在每一个楼梯间修建一个通向楼房后部的入口。
o
底楼公寓户外活动天井可修建小菜园和额外的生活空间。(这些公寓是目前少有选择。这一附加的好处有助于平衡楼房选择状况。)
楼房后面可形成的独立封闭的空间。特别是当两橦楼房背向修建时,居住者可修建个私人户外空间。这样可为楼上的居住者提供一个花园空间,成为一个小孩可以玩耍,还可晾晒衣物以及举行社区活动、开会和聚会的公共场所。 |
|
·
社区活动、会议和聚会的公共空间等。我们将公寓大楼与一片带顶棚的公共区域结合起来用于社区举办各类活动、会议和聚会等。这一空间区域通向前方的一个小型广场,可应付在大型集会或户外活动人流量过大的情况。我们还将这片空间与社区的自动化洗衣设施结合起来。在多数楼房里,几个家庭会共享一个半自动洗衣机。这些设备并不是很方便(与全自动洗衣机相比),而且也比社区只配备一个洗衣机花费更多的成本。公共洗衣区域可以变成一个社交聚会点和私人公共空间,与孩子们的玩耍区域也很近。
·
底楼公寓的花园。在楼房的前面,底楼公寓楼有带花园的天井,使用者可以自行修建。这为公寓的居住者提供了一个好处:他们可以拥有一个花园和更大的生活空间;而且,其它邻居也能共享这一修建在楼房前面的花园。
·
自然降温和照明。我们在这里介绍了几大特点,可以加强楼房的自然降温和照明功能:
o
天棚用以减少太阳能吸收
o
改善窗户分布形态
o
楼房两端的窗户
o
墙头和格架上的藤蔓植物用以降温
o
反射涂料用以减少太阳能吸收,特别是受到太阳光强烈照射的屋顶和表面。
·
空间利用
o
最少6英吋阳台。目前的阳台面积太小而不适用。较大的低限尽寸才能提供有价值的空间。
o
合并阳台和起居室。可将起居室和阳台之间的墙拆掉,打通两处空间,反过来,也可以将这两处隔开。
o
关闭或打开通向饭厅/起居室的门。打开厨房通向就餐区域的门可为两片区域提供更大的空间感,还可增加厨房的作业区域,使得烹饪的人和其它的人有一定的社交接触。古巴人喜欢把厨房看作私人的空间,所以这种门户开放的形式一定要是可选择的。
·
自助修建。我们希望使用者能最大限度地参与社区设计和建设。这样的参与行为能创造满足人们需要和愿望和更加紧密的环境;而且这种方式会降低成本,更加人性化和多样化。自助修建的设施目前包括:底楼天井和花园、私人户外还社区花园的公共区域、玩耍区域和晾晒处等。

主页 项目 留言簿 链接 关于我们 联系我们
|