
click on the image for a larger version.
|
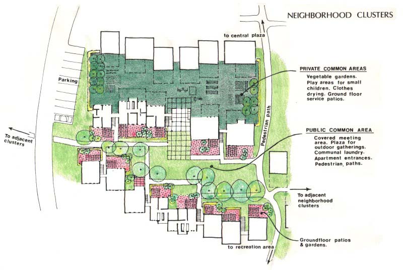
Using these options for horizontal and vertical displacements, we were able to create community complexes in which the fronts of the buildings create a public common area with pedestrian pathways leading to the apartment entrances, a neighborhood plaza and covered meeting area. The ground floor patios and gardens provide a green tended border to this common space.
Behind the buildings is the private common area for the occupants of the building. This area contains community and individual garden plots, protected play areas for small children close to the
communal laundry facility, and clothes drying area. The communal laundry is part of the covered gathering space. A pedestrian path leads to the central plaza, shopping, schools, cinema, etc. an average walk of about 200 meters. To the south these same paths lead to the dam and recreation area. Parking is close by (average distance 30 meters, maximum 80) on the slow roads that provide internal vehicular access. |