LA VIVIENDA INDIVIDUAL:
Habiendo tratado el plan general, vamos ahora al otro lado del problema: las viviendas individuales.
Empezando Con lo que Existe

toca al imagen para un foto mas grande.
|
Enfocamos el problema de la unidad individual, tirando un vistazo a los sistemas existentes y seleccionando el
más ventajoso. Los diseños que seleccionamos como los más ventajosos son los
diseños típicos para edificios de 4-5 plantas como el GP-VI, E-14, etc., enfocando en este
caso el GP-VI (vea la figura 7). Estos diseños, que son bastante parecidos, tienen varias
características muy buenas. Estas características no se encuentran en otros
diseños del país y aun las viviendas de los países desarrollados, como por ejemplo
EE.UU., carecen de ellas. Consideramos que era muy importante utilizar y conservar estas
características. No desperdiciarlas, sino construir partiendo de ellas.
|
Conservando lo Mejor
Las características de los edificios existentes que debemos conservar son:
- Edificios estrechos, con el grosor de un solo apartamento. Esta quizá es la
característica más importante, pues facilita la iluminación natural, la
ventilación cruzada (para enfriamiento natural), provee
más vista, provee ventanas exteriores para cada cuarto y mas privacidad y aislamiento del ruido.
- Escaleras con entrada individual sin pasillos. La entrada a cada apartamento es de una caja de escalera individual en vez de un pasillo que sirva a todos los apartamentos en la misma planta. Esto ofrece una serie de ventajas. La entrada
está en una posición central, interior y debido a esto se presenta una buena
circulación interior. La escalera individual sirve a un numero relativamente
pequeño de apartamentos (8 en un edificio de 4 pisos) y por eso, la entrada resulta mas
íntima y personal. Los pasillos no quedan delante de los apartamentos mejorando aun
más la privacidad.
- Balcón. Cada apartamento tiene su propio balcón, permitiendo de este modo una
pequeña área exterior que ofrece privacidad. Esto es importante en los
países tropicales.
- Ventanas con persianas de madera. Esta característica es común en muchos de los edificios existentes, pero debe conservarse. El cristal permite un incremento de calor solar no deseable y los cristales fijos, no permiten control de la
ventilación. Las persianas de madera facilitan el aislamiento, protegen mejor contra los rayos solares, y permiten control de la
ventilación.
- Construcción duradera.
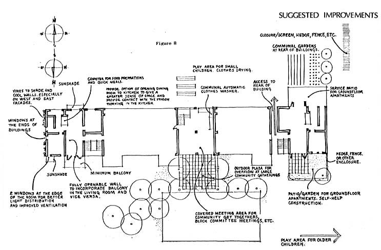
Problemas y Sugerencias Para Mejoras
Estos edificios también tienen numerosos problemas que debemos resolver. Creemos que es importante que estas mejoras tengan su base sobre lo que ya esta hecho, sacando ventaja de los logros obtenidos a la fecha y manteniendo las mejores
características de los sistemas existentes. Quizás una de las debilidades de los sistemas nuevos creados en los
últimos 25 años es que no han incorporado adecuadamente las mejores
características de las construcciones tradicionales.

toca al imagen para un foto mas grande.
|
- Espacios exteriores útiles. Uno de los problemas más graves con los edificios existentes es la falta de
integración con las áreas exteriores, especialmente en la parte de atrás de los edificios. La fachada posterior es completamente plana con poca
comunicación visual y ningún acceso fisco. Como resultado no se utiliza esta
área exterior. Resulta desagradable a la vista y al mismo tiempo se desperdicia un recurso importante. Para cambiar esta
situación proponemos varias mejoras:
- Acceso a la parte de atrás del edificio por cada escalera.
- Patios exteriores de servicio para los apartamentos de la planta baja que permitan crear
pequeños jardines para sembrar hortalizas y a su vez incrementar el espacio para las viviendas. (Estos apartamentos no son los preferidos. Este beneficio puede igualar la preferencia.)
- Clausura del espacio posterior de los edificios, especialmente cuando hay dos de ellos que se comunican por la parte de
atrás, para crear un área exterior privada para los habitantes de los mismos. Este espacio puede servir como
jardín para los habitantes de los pisos superiores, como áreas de juego para los
niños pequeños, como un lugar para poner a secar la ropa, etc.
- Espacio común para las actividades de la comunidad, reuniones, fiestas, etc. Hemos incluido dentro del
diseño de los edificios un área común, bajo techo, que se utiliza para actividades comunales. Este espacio se comunica con una plaza
pequeña en la parte delantera que puede utilizarse para reuniones mas grandes y para las actividades al aire libre.
|
También incluimos dentro de este espacio una lavandería con lavadoras
automáticas. En muchos edificios hay unas familias que tienen lavadoras
semiautomáticas. Estos equipos no son muy convenientes (comparados con las completamente
automáticas) y cuestan mas que si se instala una maquina que sirva a la comunidad. Esta
área de lavado se puede convertir en un punto de reunión y estar estrechamente relacionada con el
área de juego para niños pequeños y con el área privada común.
- Jardines para los apartamentos de la planta baja. En el frente del edificio, los apartamentos de la planta baja tienen patios con
pequeños jardines construidos por los vecinos. Esto beneficia al que habita en el apartamento, que de este modo posee un
jardín y mas espacio y también a otras personas de la vecindad que pueden disfrutar los jardines creados al frente de los edificios.
- Ventilación e iluminación natural. Hemos introducido varias
características para mejorar la ventilación y la iluminación natural de los edificios:
- Quiebrasoles para reducir la penetración de los rayos solares.
- Mejor distribución de las ventanas.
- Ventanas en los extremos de los edificios.
- Enredaderas en las paredes y enrejados para enfriamiento.
- Pinturas reflectantes para reducir el calentamiento solar, especialmente en los techos y las superficies con gran
exposición al sol.
- Aprovechamiento del espacio.
- Balcón de 1.8m como mínimo. Los tamaños que se usan ahora son demasiado
pequeños. Un Standard mayor hará más aprovechable este espacio.
- Incorporación del balcón y la sala. La pared plegable entre la sala y el
balcón permite la incorporación del espacio del balcón en el espacio de la sala y viceversa.
- Cocina que se comunica o no con el comedor. Al comunicar la cocina con el comedor se da una
sensación de más espacio en ambas áreas, aumenta el área de trabajo en la cocina y permite contacto social entre la persona que
está cocinando y las demás. Como algunos cubanos prefieren que la cocina sea privada, esta
comunicación debe ser opcional.
- Auto-construcción. Queremos elevar al máximo la capacidad de los usuarios para participar en el
diseño y la construcción de la comunidad. Esta participación crea un ambiente que se ajusta
más a las necesidades y deseos de la población, es mas barato, más personalizado
y más variado. Los elementos adoptados hasta ahora para la auto-construcción incluyen los patios de la planta baja y los jardines, las
áreas comunes privadas con sus jardines también, las áreas de juego, las áreas donde se puede poner a secar la ropa, etc.
· home · projects
· bulletin board · links
· who are we · contact ·
|